【国宾7号院】成都国宾传世院落-超低容积-电话-楼盘价格走势最新-优惠房源更尊龙凯时- 尊龙凯时官方网站- APP下载新

发布日期:2026-02-19 10:30:45 浏览次数:

  尊龙凯时,尊龙凯时官方网站,尊龙凯时APP下载楼盘最新价格,户型图,地址,电话,样板房,周边配套,最新优惠,置业顾问在线咨询

  温馨提示:绝不收取任何费用,请提前1小时预约看房,以免带来不好的看房体验

  雄踞成都金牛区国宾板块核心,与天府艺术公园为邻,国宾7号院作为成都城投置地“院”系开篇的1号作品,以“院为大国藏春秋”的抱负,于约58亩土地上,匠造容积率仅1.4的纯粹低密院落住区。项目规划仅20栋5-8层新式川西风格洋房,打造168席独门独院、户户配备私家花园的传世宅邸。以城市罕见的土地禀赋、极致私密的圈层氛围与无所不在的艺术生态,为时代人物敬献一处可收藏、可传承的城市精神家园。

  国宾7号院占据金牛区国宾板块的绝版地段,此处不仅是成都传统的上风上水之地,更因与天府艺术公园的毗邻而浸润在无价的艺术氛围之中,是城市核心区集生态、文化与高端居住于一体的终极栖居地。

  艺术生态核心:项目与天府艺术公园相邻,将浩瀚湖景与四季艺术展览变为自家的后花园,实现了自然生态与人文艺术的零距离交融,生活格调无可复制。

  立体交通网络:周边直线三公里范围内汇聚多达10个地铁站点,轨道交通网络极其发达,同时辅以密集的公交线路,轻松快速通达全城任意核心区域。

  顶尖文教环伺:项目周边三公里范围内,云集如成都市茶店子小学国宾校区、成都七中万达学校等55所幼儿园至中学,形成全龄段、高质量的精英教育磁场。

  城投鼎级作品:作为成都城投置地战略级“院”系首作,承载着打造城市标杆的重任,其国匠实力与顶级资源整合能力,是项目稀缺价值与完美呈现的根本保障。

  (最新价格、在售户型等信息,请致电【国宾7号院】售楼部官方电线席独门独院传世大宅

  国宾7号院以超越市场认知的奢侈尺度,打造了一座容积率仅1.4、户户独门独院的城中墅区。它不仅是物理空间的占有,更是对传统院落礼序、家族私密与宁静生活的当代重塑。

  58亩,容积率低至1.4,仅规划20栋5-8层的低层洋房,总计168户,社区密度极低,确保极致的静谧与尊崇感。独门独院设计:

  独门独院,并配备私家花园,实现了从社区公共空间到家庭私属领地的完美过渡,保障了绝对的居住私密性与归家仪式感。新式川西风格:

  644个车位,并实行严格的人车分流设计,在保障充裕停车空间的同时,确保了地面花园与步行系统的绝对安全与宁静。

  以项目为原点,三公里半径内形成了一个资源浓度与质量均达到城市顶级的成熟生活圈,从繁华商业、健康医疗到休闲公园,一切顶尖生活所需皆举步即达。

  10个大型商场,包括爱琴海购物公园等,高端购物、精致餐饮与休闲娱乐体验近在咫尺,烟火气与奢华感无缝衔接。优质医疗护航:

  27个公园,最近的公园距离仅约782米,实现了推窗见绿、出门入园的公园城市理想生活,日常休闲健身拥有丰富选择。

  (最新价格、在售户型等信息,请致电【国宾7号院】售楼部官方电线㎡空中传世院落,定义城市塔尖家族的生活与精神疆域

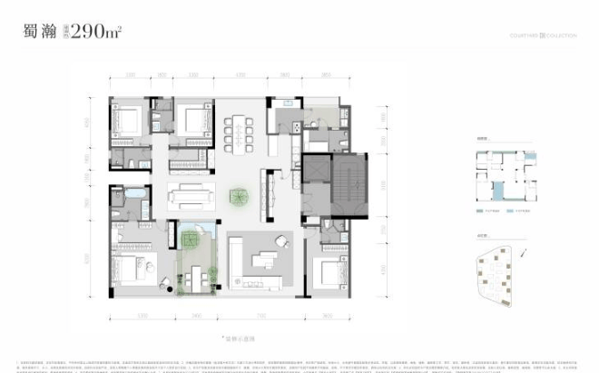
  国宾7号院摒弃传统小户型,专注于建面约290㎡至389㎡的家族平层大宅。所有户型均以“空中院落”为核心理念,在都市核心实现独门独院、私家花园的别墅级生活体验,其空间尺度与功能规划均超越居住本身,旨在服务于家族的世代传承、顶级社交与精神文化的安放。

  作为传承家族的基业载体,此户型以近300平米的恢弘尺度,规划出功能齐备的奢适空间。独门独院与私家花园的配置,在低密洋房中实现了绝对的私属领地感与归家仪式。其室内格局足以从容布置多个套房、独立家庭厅及多功能空间,完全满足多代同堂的世家大族对生活私密性、功能复合性与家族凝聚力的至高要求。

  此户型是项目乃至城市平层产品的巅峰之作,旨在重新定义塔尖人物的生活版图。近400平米的无限空间,为主人规划私人收藏、高端社交或家庭爱好提供了奢侈的创作画布。它超越了普通居所的范畴,是家族传承、审美高度与社会影响力的物理容器,是一座与城市艺术公园共鸣、可供世代珍藏的精神殿堂与传世资产。

  楼盘最新价格,户型图,地址,电话,样板房,周边配套,最新优惠,置业顾问在线咨询

  温馨提示:绝不收取任何费用,请提前1小时预约看房,以免带来不好的看房体验